Whole floor of 565m2 on a modern commercial building of top grade offices in Potamos Germasogias
For Rent (Long Term) / EUR 26.500
77775070
or +357 95598488
Modern office building offering an exceptional environment for work & creativity. Designed in the modern open space style, allowing for efficient use of all the available space & customisable areas, tailored to the specific requirements of each business project.
Advantages & Benefits of this business center:
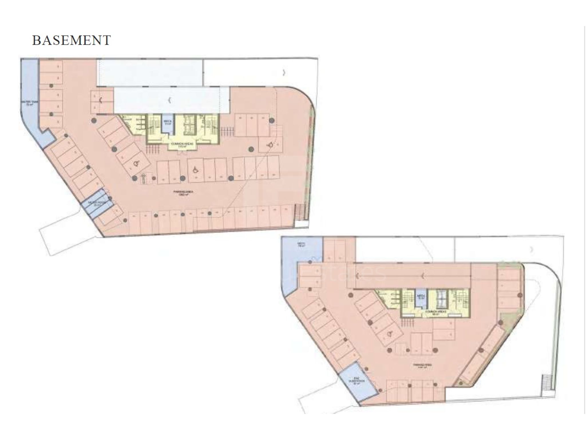
-Full functionality: The building is fully equipped for productive work, leisure & sports, featuring a Gym, a cozy caf?, conference rooms, a stylish lobby, various sizes of presentable offices and a guarded 2-level parking facility.
-High quality infrastructure & equipment
-Advanced systems & sustainable design incorporating intelligent automation systems, energy efficient designs and environmentally friendly materials.
-High-speed connectivity & security: Providing high-speed fiber-optic connections and security solutions.
-High-speed, low noise KLEEMAN elevators for efficiency, performance & comfort with procedures in place to provide up to the minute feedback on any possible repairs needed to avoid any malfunctions before they happen
-Panoramic views of the Mediterranean Sea, the mountains & the city
-An abundance of natural light through the panoramic glazing
-Very quick & easy access onto the highway and only a 2 minute drive to the sea shore
-The rooftop is a dedicated space for relaxation and relaxed meetings, featuring a lush garden and a recreational area for employees.
Commercial business center "A " Grade of 11 Floors (2 level parking, shop/ground level, mezzanine level and 7 office floors) with:
total area of 8,500 m2. – Rentable area 5533m2 – 5150m2 usable area – 500m2 Roof garden/Recreational/Relaxing area
Each of the floors has an area of 565 sq.m. Rental price for each of the first 3 floors is 26500 euro and for 4th, 5th & 6th floors is 28500 euro each. The 7th floor together with the Roof Garden is 38500 euro








